Ufficio in vendita

Zibido San Giacomo, Via Grazia Deledda
€ 100.000
1 locale 1 locale
65 Mq 65 Mq
1 bagno 1 bagno

Ufficio in vendita

Zibido San Giacomo, Via Grazia Deledda

Descrizione annuncio

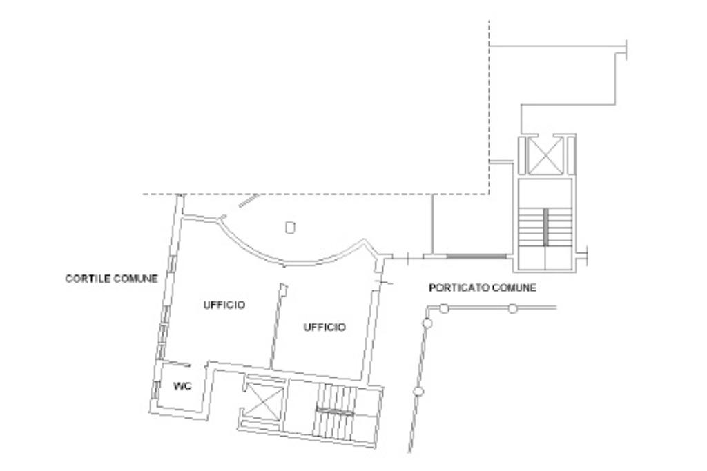
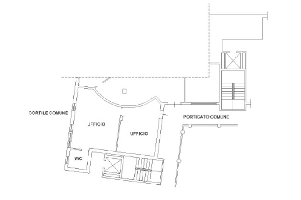
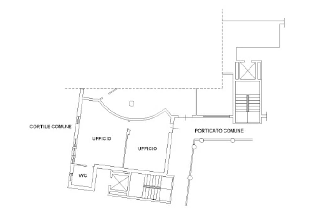
Nel comune di Zibido San Giacomo, proponiamo in vendita un ufficio di 65mq.

DISPONIBILE DA SUBITO

L’immobile, completamente ristrutturato, è ubicato al piano terra in uno stabile residenziale ed è composto da unico locale molto luminoso grazie alle ampie vetrate, e servizio igienico. L’ingresso è indipendente.

Il riscaldamento e il condizionamento sono autonomi.

Per ulteriori informazioni o per fissare una visita, chiamaci o passa a trovarci in agenzia!

LE INFORMAZIONI NON COSTITUISCONO ELEMENTO CONTARTTUALE

OGNI AGENZIA HA UN PROPRIO TITOLARE ED E’ AUTONOMA

Mostra tutto

Nelle vicinanze

Trasporto pubblico Trasporto pubblico
Trasporto pubblico
310 m
Via Carducci - Via XXV Aprile (Zibido San Giacomo)
Via Carducci - Via XXV Aprile (Zibido San Giacomo)
1,7 Km
Scuole Scuole
Scuole
210 m
Bar Bar
Bar
450 m
Ristoranti Ristoranti
L'isola fiorita
880 m
Lo Stallino
2,1 Km
Artica Osteria Moirago
2,1 Km
Trattoria Burlagio
2,9 Km
Mostra tutto

Caratteristiche

Rif.:
61165826
Piano:
Terra di 4
Totale piani:
4
Condizionamento:
Autonomo
Ascensore:
No
Riscaldamento:
Autonomo
Mostra tutto
Prezzo Prezzo
€ 100.000
Rata mutuo Rata mutuo
€ 475 / mese
Spese annue Spese annue
€ 1.350
Proponi il tuo prezzoProponi il tuo prezzo

Altre caratteristiche

Descrizione dei locali
Bagno Con Finestra

Classe Energetica

D
D
D
D
D
D
D
D
D
EP globale non rinnovabile:
533.51 kW h/m² anno
EP globale rinnovabile:
52.10 kW h/m² anno
Anno di costruzione:
1970
Riscaldamento:
Autonomo
Tipo impianto:
A radiatori
Tipo alimentazione:
Metano

Ti interessa visionare l'immobile?

Fissa un appuntamento  Fissa un appuntamento

Richiedi informazioni

Clicca su Leggi per aprire l'informativa
* Questi campi sono obbligatori

Calcola il tuo mutuo

Semplice e senza impegno
Anticipo

( % )
Mutuo

( % )

pochi semplici passi

inserisci i tuoi dati
Questionario completato
Grazie per aver richiesto un appuntamento senza impegno con un nostro Consulente del Credito e Assicurativo.

Hai inserito correttamente tutti i dati necessari e a breve riceverai una e-mail con un link da convalidare per inviare i tuoi dati.
Affiliato
Adr Impresa Ovest Srl
Viale Leonardo Da Vinci , 66 20090 Trezzano Sul Naviglio (MI)

Il nostro staff


  • Filippo Iccardi
    Collaboratore

  • Ryan Cerasomma
    Collaboratore

  • Roberto Pisani
    Affiliato

  • Giulia Antonella Arestia
    Coordinatrice
Viale Leonardo Da Vinci , 66 20090 Trezzano Sul Naviglio (MI)
Zona: Trezzano S/N
Mostra su mappa
Orari: Lunedì - Venerdì dalle ore 08:30 alle 19:30 - Sabato dalle ore 09:00 alle 17:00
Affiliato
Adr Impresa Ovest Srl
Viale Leonardo Da Vinci , 66 20090 Trezzano Sul Naviglio (MI)

2026 Tecnocasa Franchising S.p.A. - P. IVA 08365160152 - Via Monte Bianco 60/A 20089 Rozzano (MI). Ogni agenzia ha un proprio titolare ed è autonoma. Privacy policy | Policy utilizzo | Cookie policy