Capannone in vendita

Trezzano Sul Naviglio, Via Capuana
€ 155.000
3 locali 3 locali
170 Mq 170 Mq
2 bagni 2 bagni

Capannone in vendita

Trezzano Sul Naviglio, Via Capuana

Descrizione annuncio

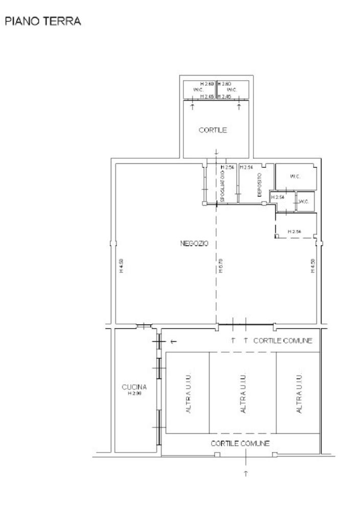
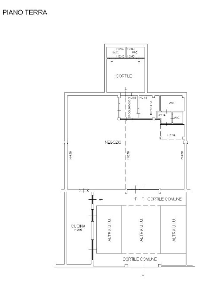
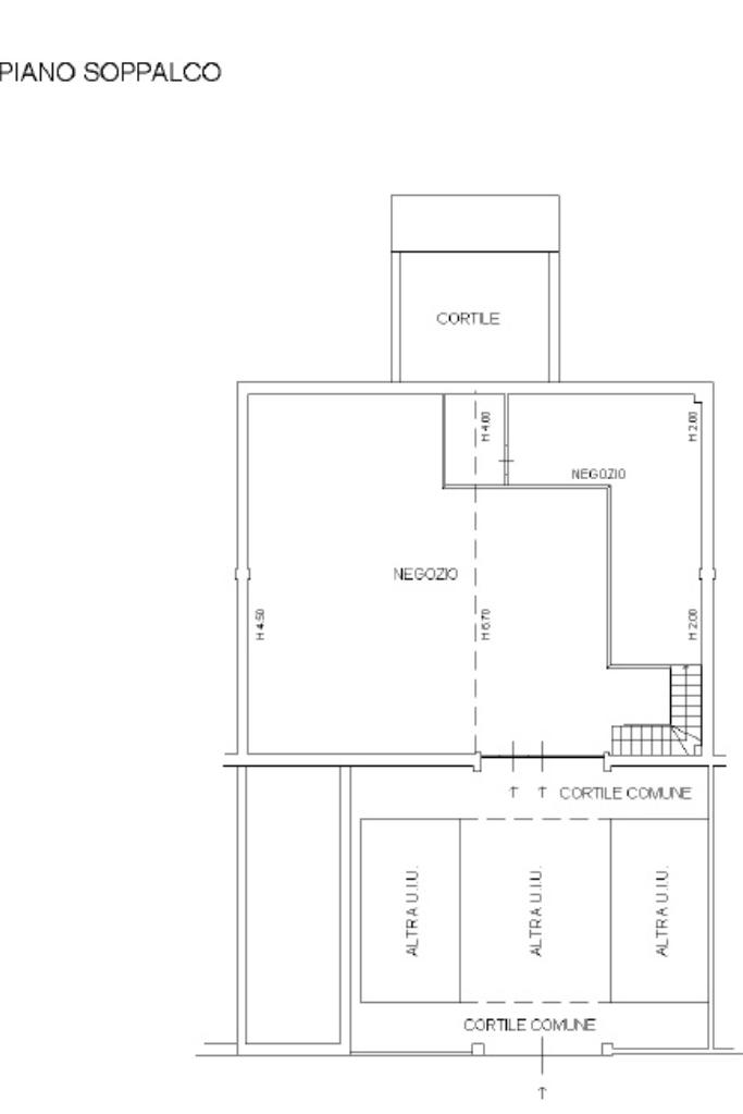
Nella zona industriale del comune di Trezzano sul Naviglio, proponiamo in vendita un capannone di 170mq.

DISPONIBILE DA SUBITO

L’immobile, attualmente adibito ad uso pub, si presenta in buono stato, dotato di accesso carraio e cortile di 60mq comodo per la sosta di piccoli mezzi.

Con un’altezza sottotrave di 5mt, impianto di riscaldamento e raffrescamento e soppalco, è la soluzione ideale per attività produttive o commerciali. Inoltre, grazie alla presenza di canna fumaria, si presta ad attività di ristorazione.

I lavori di ristrutturazione interna sono stati effettuati nel 2017, riguardanti anche il tetto.

Il prezzo si intende esente di Iva.

Per ulteriori informazioni o per fissare una visita, chiamaci o passa in agenzia.

Le informazioni non costituiscono elemento contrattuale.

Ogni agenzia ha un proprio titolare ed è autonoma.

Valutazioni gratuite

Mostra tutto

Nelle vicinanze

Trasporto pubblico Trasporto pubblico
Via Marconi-Via Piero della Francesca
Via Marconi-Via Piero della Francesca
100 m
Via Buonarroti-Via Marconi
Via Buonarroti-Via Marconi
120 m
stazione di Trezzano sul Naviglio
stazione di Trezzano sul Naviglio
1,0 Km
Gaggiano
Gaggiano
2,2 Km
Ricariche auto elettriche Ricariche auto elettriche
Parcheggio IKEA Corsico
2,1 Km
IKEA Corsico
2,2 Km
Europa Shopping Center fronte Tigros
2,3 Km
Europa Shopping Center fronte Pittarosso
2,6 Km
EnelX EVAD Sede Enel Corsico
2,8 Km
Scuole Scuole
Centro Linguistico Europeo
330 m
Scuola primaria Boschetto
590 m
British Institute
600 m
Scuola Primaria "Mauro Brutto"
610 m
Scuola Media "Piero Gobetti"
720 m
Farmacia Farmacia
Farmacia Borsari
210 m
Farmacia Zingone
710 m
Farmacia Morona
820 m
Farmacia
1,3 Km
Farmacia Gerardis
1,5 Km
Supermercati Supermercati
LIDL
380 m
EuroSpin
500 m
Iperdì
990 m
Punto Simply
1,1 Km
Unes U2
1,5 Km
Negozi Negozi
PanCaffè
200 m
Aemme
220 m
Negozi
330 m
CZ Store
520 m
Picasso Pizzeria
600 m
Bar Bar
Las Vegas
490 m
Le Bistrot
550 m
Ronny Bar
580 m
Piccolo Kristal
630 m
Picasso Café
680 m
Ristoranti Ristoranti
Pizzeria Il Nonnino
500 m
Km.0
520 m
Pizzeria Gastronomia San Marco
620 m
Trezzano Instanbul Kebab
720 m
Gauguin - Restaurant Café
770 m
Mostra tutto

Caratteristiche

Rif.:
61193477
Piano:
Terra
Condizionamento:
Centralizzato
Ascensore:
No
Riscaldamento:
Centralizzato
Giardino:
Privato
Mostra tutto
Prezzo Prezzo
€ 155.000
Rata mutuo Rata mutuo
€ 736 / mese
Spese annue Spese annue
€ 0
Proponi il tuo prezzoProponi il tuo prezzo

Altre caratteristiche

Descrizione dei locali
Bagno Con Finestra

Classe Energetica

G
G
G
G
G
G
G
G
G
EP globale non rinnovabile:
1.00 kW h/m² anno
EP globale rinnovabile:
1.00 kW h/m² anno
Anno di costruzione:
1980
Riscaldamento:
Centralizzato
Tipo impianto:
Ad aria
Tipo alimentazione:
Aria

Ti interessa visionare l'immobile?

Fissa un appuntamento  Fissa un appuntamento

Richiedi informazioni

Clicca su Leggi per aprire l'informativa
* Questi campi sono obbligatori

Calcola il tuo mutuo

Semplice e senza impegno
Anticipo

( % )
Mutuo

( % )

pochi semplici passi

inserisci i tuoi dati
Questionario completato
Grazie per aver richiesto un appuntamento senza impegno con un nostro Consulente del Credito e Assicurativo.

Hai inserito correttamente tutti i dati necessari e a breve riceverai una e-mail con un link da convalidare per inviare i tuoi dati.
Affiliato
Adr Impresa Ovest Srl
Viale Leonardo Da Vinci , 66 20090 Trezzano Sul Naviglio (MI)

Il nostro staff


  • Filippo Iccardi
    Collaboratore

  • Ryan Cerasomma
    Collaboratore

  • Roberto Pisani
    Affiliato

  • Giulia Antonella Arestia
    Coordinatrice
Viale Leonardo Da Vinci , 66 20090 Trezzano Sul Naviglio (MI)
Zona: Trezzano S/N
Mostra su mappa
Orari: Lunedì - Venerdì dalle ore 08:30 alle 19:30 - Sabato dalle ore 09:00 alle 17:00
Affiliato
Adr Impresa Ovest Srl
Viale Leonardo Da Vinci , 66 20090 Trezzano Sul Naviglio (MI)

2026 Tecnocasa Franchising S.p.A. - P. IVA 08365160152 - Via Monte Bianco 60/A 20089 Rozzano (MI). Ogni agenzia ha un proprio titolare ed è autonoma. Privacy policy | Policy utilizzo | Cookie policy