Capannone in vendita

Trezzano Sul Naviglio, Via Darwin
€ 110.000
2 locali 2 locali
120 Mq 120 Mq
1 bagno 1 bagno

Capannone in vendita

Trezzano Sul Naviglio, Via Darwin

Descrizione annuncio

Trezzano sul naviglio

Via Darwin:

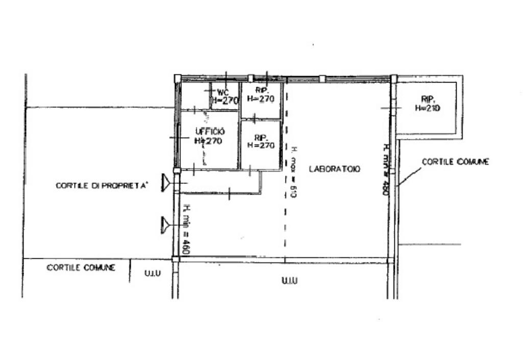
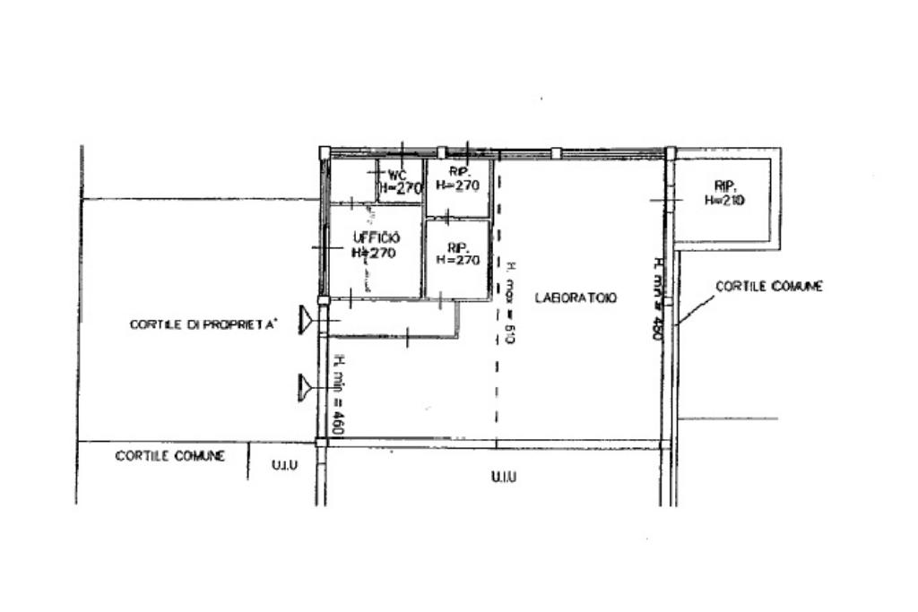
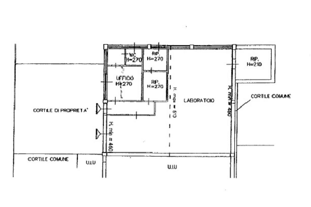
Capannone di 110 mq, in contesto industriale.

Il capannone che proponiamo si sviluppa su un unico livello, ad uso industriale con altezza di 4,50 M un portone, dotato di ingresso carraio.

Inoltre al suo interno vi troviamo un comodo ufficio con servizi.

Il capannone è localizzato a Trezzano sul naviglio nell'area industriale, in un contesto caratterizzato dalla presenza di aziende a destinazione per lo più industriale/produttiva.

Ottima è la vicinanza alle arterie autostradali e alle tangenziali, che permettono un comodo collegamento tra Milano e Hinterland oltre che con il resto della Lombardia e regioni del nord-Italia.

Luminoso e comodo per diverse destinazioni d'uso.

LIBERO SUBITO!

Per ulteriori informazioni o per fissare una visita, chiamaci o passa a trovarci in Agenzia!

Le informazioni non costituiscono elemento contrattuale.

Ogni agenzia ha un proprio titolare ed è autonoma.

VALUTAZIONI GRATUITE!

Mostra tutto

Nelle vicinanze

Trasporto pubblico Trasporto pubblico
Trasporto pubblico
1,7 Km
V.le Colombo-Via Cellini
V.le Colombo-Via Cellini
1,7 Km
stazione di Trezzano sul Naviglio
stazione di Trezzano sul Naviglio
1,6 Km
Cesano Boscone
Cesano Boscone
1,9 Km
Ricariche auto elettriche Ricariche auto elettriche
IKEA Corsico
1,5 Km
EnelX EVAD Sede Enel Corsico
1,6 Km
Parcheggio IKEA Corsico
1,6 Km
U2 Buccinasco | EnelX
2,4 Km
Enel X Acqua & Sapone
2,4 Km
Scuole Scuole
Scuola Primaria "Lelio Basso"
950 m
Scuole
1,4 Km
Scuola Media "Cecco Cuciniello"
1,6 Km
Scuola secondaria di1° grado di Via Emilia
1,7 Km
Scuola primaria "1° Maggio"
1,8 Km
Farmacia Farmacia
Farmacia Gerardis
1,1 Km
Farmacia
1,3 Km
Farmacia Trieste
2,0 Km
Farmacia Zingone
2,1 Km
Farmacia Tessera
2,1 Km
Supermercati Supermercati
Nat&Bio
1,8 Km
Iperdì
1,9 Km
Punto Simply
1,9 Km
Supermercati
2,1 Km
EuroSpin
2,1 Km
Negozi Negozi
Negozi
920 m
Elle
1,3 Km
L'Oasi del pane e dei dolci
1,4 Km
Ragno
1,8 Km
Davenia
1,8 Km
Bar Bar
Bar
1,5 Km
Spritzz Café
1,9 Km
Fenice
1,9 Km
Bar Pippo
2,0 Km
Le Bistrot
2,0 Km
Ristoranti Ristoranti
Mirtillo
270 m
Ristorante Cascina Antonietta
850 m
Bacco e Arianna
1,1 Km
Ristorante Pizzeria O'Vesuvio
1,2 Km
Ca' Solare
1,2 Km
Mostra tutto

Caratteristiche

Rif.:
61019767
Piano:
Terra di 1
Totale piani:
1
Condizionamento:
Assente
Ascensore:
No
Riscaldamento:
Autonomo
Mostra tutto
Prezzo Prezzo
€ 110.000
Rata mutuo Rata mutuo
€ 523 / mese
Spese annue Spese annue
€ 1
Proponi il tuo prezzoProponi il tuo prezzo

Altre caratteristiche

Descrizione dei locali
Bagno Con Finestra

Classe Energetica

G
G
G
G
G
G
G
G
G
EP globale non rinnovabile:
189.40 kW h/m² anno
EP globale rinnovabile:
1.00 kW h/m² anno
EP invernale del fabbricato:
EP estiva del fabbricato:
Anno di costruzione:
1980
Riscaldamento:
Autonomo
Tipo impianto:
A radiatori
Tipo alimentazione:
Metano

Ti interessa visionare l'immobile?

Fissa un appuntamento  Fissa un appuntamento

Richiedi informazioni

Clicca su Leggi per aprire l'informativa
* Questi campi sono obbligatori

Calcola il tuo mutuo

Semplice e senza impegno
Anticipo

( % )
Mutuo

( % )

pochi semplici passi

inserisci i tuoi dati
Questionario completato
Grazie per aver richiesto un appuntamento senza impegno con un nostro Consulente del Credito e Assicurativo.

Hai inserito correttamente tutti i dati necessari e a breve riceverai una e-mail con un link da convalidare per inviare i tuoi dati.
Affiliato
Adr Impresa Ovest Srl
Viale Leonardo Da Vinci , 66 20090 Trezzano Sul Naviglio (MI)

Il nostro staff


  • Filippo Iccardi
    Collaboratore

  • Ryan Cerasomma
    Collaboratore

  • Roberto Pisani
    Affiliato

  • Giulia Antonella Arestia
    Coordinatrice
Viale Leonardo Da Vinci , 66 20090 Trezzano Sul Naviglio (MI)
Zona: Trezzano S/N
Mostra su mappa
Orari: Lunedì - Venerdì dalle ore 08:30 alle 19:30 - Sabato dalle ore 09:00 alle 17:00
Affiliato
Adr Impresa Ovest Srl
Viale Leonardo Da Vinci , 66 20090 Trezzano Sul Naviglio (MI)

2026 Tecnocasa Franchising S.p.A. - P. IVA 08365160152 - Via Monte Bianco 60/A 20089 Rozzano (MI). Ogni agenzia ha un proprio titolare ed è autonoma. Privacy policy | Policy utilizzo | Cookie policy