Complesso in vendita

Gudo Visconti, Via Edison
€ 420.000
5 locali 5 locali
380 Mq 380 Mq
3 bagni 3 bagni

Complesso in vendita

Gudo Visconti, Via Edison

Descrizione annuncio

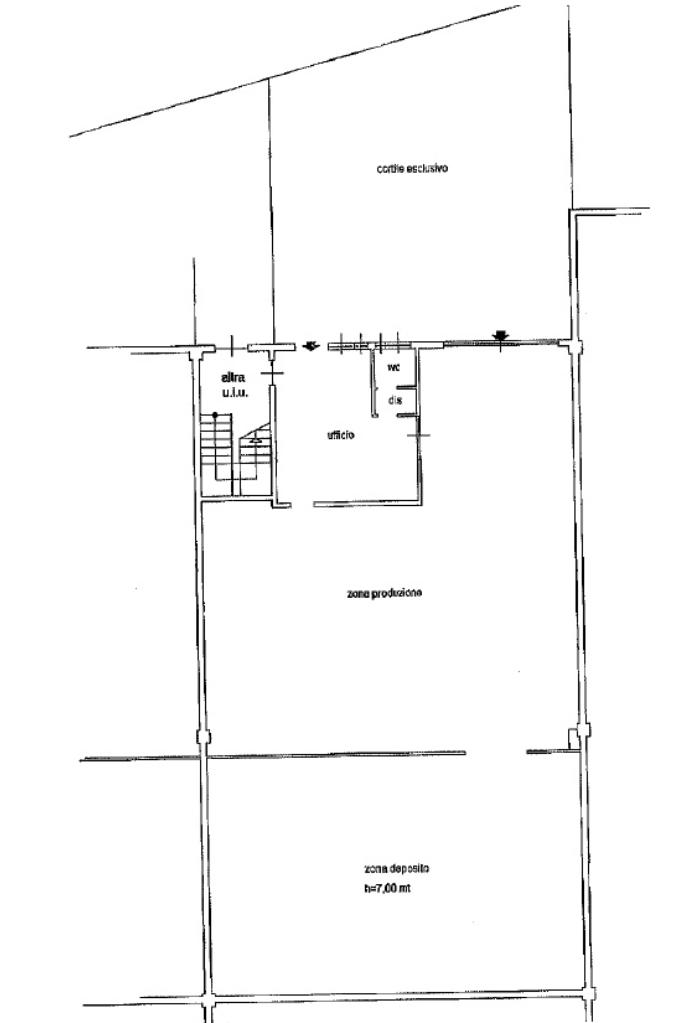
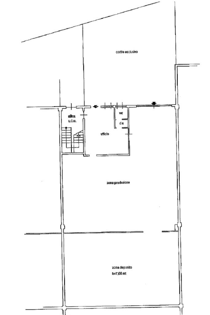
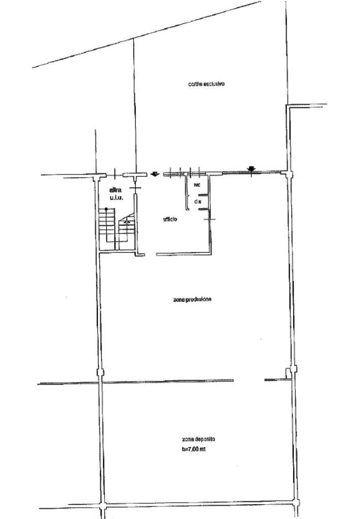
Nel comune di Gudo Visconti proponiamo in vendita un complesso di 600mq composto da capannone e appartamento al piano superiore.

DISPONIBILE DA SUBITO

Al piano terra troviamo il capannone di 380mq in buono stato con uffici di recente costruzione, oltre un cortile, comodo per carico/scarico di piccoli furgoni.

Al piano superiore troviamo un appartamento così composto: sala da pranzo, soggiorno, cucina abitabile, tre camere da letto e due bagni; venduto arredato. Ulteriore plus è la presenza di un terrazzo. L’ingresso all’appartamento è separato dal capannone.

L’immobile si presta perfettamente per diverse tipologie di attività sia di tipo commerciale che produttive, come deposito o stoccaggio di materiali. Ideale per chi cerca riservatezza dal centro, così da poter svolgere in piena tranquillità la propria attività.

Per ulteriori informazioni o per fissare una visita, chiamaci o passa in agenzia.

LE INFORMAZIONI NON COSTITUISCONO ELEMENTO CONTRATTUALE.

OGNI AGENZIA HA UN PROPRIO TITOLARE ED E’ AUTONOMA

VALUTAZIONI GRATUITE

Mostra tutto

Nelle vicinanze

Trasporto pubblico Trasporto pubblico
Trasporto pubblico
3,0 Km
Ricariche auto elettriche Ricariche auto elettriche
Municipio Gudo Visconti | EnelX
970 m
Scuole Scuole
asilo
910 m
Scuola Elementare
1,0 Km
Scuola Secondaria di primo grado di Vermezzo
1,6 Km
Scuola Primaria di Vermezzo
1,6 Km
Farmacia Farmacia
Farmacia Viscontea
1,0 Km
Farmacia Della Salute Snc Dottoressa Pivello Daniela
1,8 Km
Farmacia Merighi
2,9 Km
Supermercati Supermercati
Punto Sma
1,1 Km
Negozi Negozi
Negozi
750 m
Bar Bar
Bar
1,1 Km
Orchidea di Imbroinise M.A.
1,9 Km
Ristoranti Ristoranti
Pizzeria Ristorante La Quercia
900 m
Trattoria Castello
950 m
Locanda Rosetta
1,0 Km
pizzeria "mastix", ex "al ritrovo"
1,7 Km
cascina Guzzafame
2,7 Km
Mostra tutto

Caratteristiche

Rif.:
61156145
Piano:
Terra di 2
Totale piani:
2
Balconi:
1
Condizionamento:
Autonomo
Ascensore:
No
Mostra tutto
Prezzo Prezzo
€ 420.000
Rata mutuo Rata mutuo
€ 1.979 / mese
Spese annue Spese annue
€ 150
Proponi il tuo prezzoProponi il tuo prezzo

Altre caratteristiche

Descrizione dei locali
Bagno Con Finestra

Classe Energetica

E
E
E
E
E
E
E
E
E
Anno di costruzione:
2010
Riscaldamento:
Centralizzato
Tipo impianto:
A radiatori
Tipo alimentazione:
Metano

Ti interessa visionare l'immobile?

Fissa un appuntamento  Fissa un appuntamento

Richiedi informazioni

Clicca su Leggi per aprire l'informativa
* Questi campi sono obbligatori

Calcola il tuo mutuo

Semplice e senza impegno
Anticipo

( % )
Mutuo

( % )

pochi semplici passi

inserisci i tuoi dati
Questionario completato
Grazie per aver richiesto un appuntamento senza impegno con un nostro Consulente del Credito e Assicurativo.

Hai inserito correttamente tutti i dati necessari e a breve riceverai una e-mail con un link da convalidare per inviare i tuoi dati.
Affiliato
Adr Impresa Ovest Srl
Viale Leonardo Da Vinci , 66 20090 Trezzano Sul Naviglio (MI)

Il nostro staff


  • Filippo Iccardi
    Collaboratore

  • Ryan Cerasomma
    Collaboratore

  • Roberto Pisani
    Affiliato

  • Giulia Antonella Arestia
    Coordinatrice
Viale Leonardo Da Vinci , 66 20090 Trezzano Sul Naviglio (MI)
Zona: Trezzano S/N
Mostra su mappa
Orari: Lunedì - Venerdì dalle ore 08:30 alle 19:30 - Sabato dalle ore 09:00 alle 17:00
Affiliato
Adr Impresa Ovest Srl
Viale Leonardo Da Vinci , 66 20090 Trezzano Sul Naviglio (MI)

2026 Tecnocasa Franchising S.p.A. - P. IVA 08365160152 - Via Monte Bianco 60/A 20089 Rozzano (MI). Ogni agenzia ha un proprio titolare ed è autonoma. Privacy policy | Policy utilizzo | Cookie policy